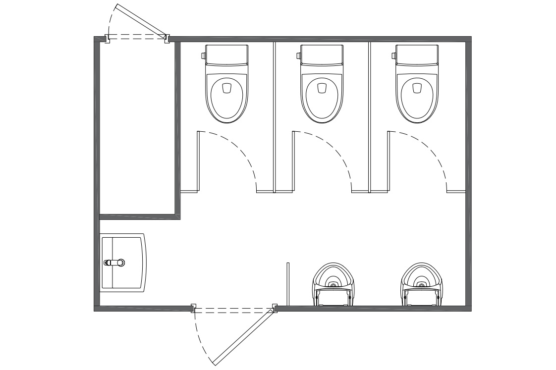
name









BS2-J

¸ð¹ÙÀÏ È­Àå½Ç

¹°Ç°½Äº°¹øÈ£ : 23405033

°¡°Ý : 19,800,000











±¸   Á¶ : ÆÇ³Ú±¸Á¶

¿ÜÀåÀç : ¿ì·¹ÅºÆÇ³Ú

³»ÀåÀç : ºÒ¿¬º¸µå / µ¥ÄÚŸÀÏ



[Àû¿ë½Ã½ºÅÛ]

µ¿ÆÄ¹æÁö½Ã½ºÅÛ / ȯ±âÀåÄ¡ / ³Ã³­¹æ½Ã½ºÅÛ / ÇÚµå µå¶óÀ̾î










BS2-J : 3500¡¿2550¡¿2900